
La ciudad de Mérida tiene a su disposición este centro cultural que cuenta con una amplia trayectoria de celebraciones y eventos en la ciudad. Dispone de un auditorio con un aforo de 225 plazas, dos salas de exposiciones temporales y espacios polivalentes.
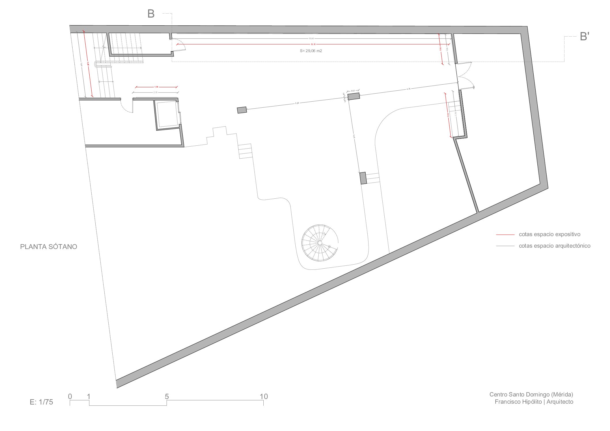
Una de las salas de exposiciones se encuentra entre restos romanas protegidos e integrados en el espacio; tus obras de arte se encontrarán sumergidas en un lugar único y repleto de historia.
El centro histórico de Mérida es el lugar ideal para disfrutar de la cultura, y el CC Santo Domingo el escenario perfecto.
Espacio Centro Cultural Santo Domingo
De lunes a viernes de 17:30 a 21:00 horas. Sábados de 10:30 a 14:00 horas.
Características
Dirección: Plaza Santo Domingo en Mérida
Totalmente accesible
Salón de Actos
En dos plantas totalmente accesibles con capacidad para 241 personas en butacas y espacio para 3 sillas de ruedas.
Medios técnicos
- Mesa de mezcla de sonido Dynacord PowerMate – 600.
- 1 Altavoz Sound Factor SF12M y 1 Altavoz Electro-Voice ELX 118-Subwoofer. Son
movibles y se utilizan para proyección de cine. Se encuentran en el escenario del Salón
de Actos. Van en el suelo. - 2 Altavoces Work modelo WPL-5. Se encuentran en las paredes del escenario del Salón
de Actos. - 4 Altavoces Work modelo Club 8. Se encuentran repartidos por el Salón de Actos





















